セルツェ芝浦 5階 501新着
物件概要
物件番号
127-00008-44物件名
セルツェ芝浦所在地
- 東京都港区芝浦1-4-1
- アクセスマップ
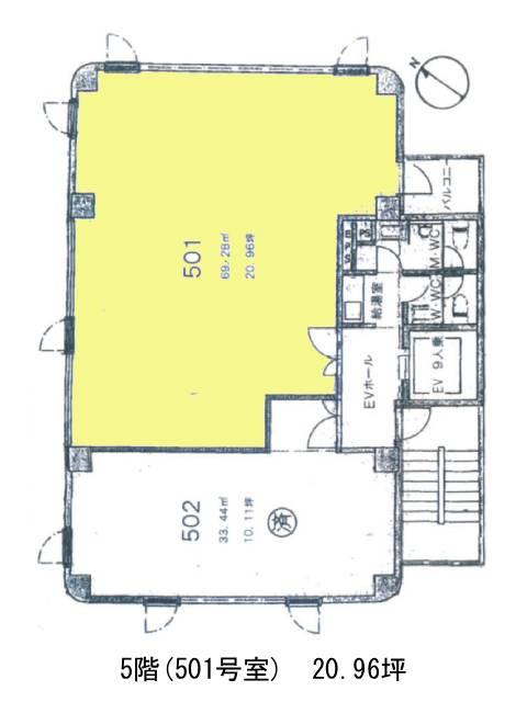
面積
20.96坪賃料(共益費含)
月額286,000円(13,646円/坪)
入居日
2026年1月中旬保証金
1,380,090円礼金
1ケ月更新料
新1ケ月償却費
2ケ月竣工
1990年3月構造
SRC規模
地上8階トイレ
男女別空調
個別空調エレベーター
有セキュリティ
有駐車場
無耐震
新耐震基準基準階天井高
2600mm空室延床面積
20.96坪情報更新日
2025/12/04セルツェ芝浦のテナント募集中区画
| 階数 | 面積 | 賃料(共益費含む) | 保証金 | 入居可能日 | 検討リスト | 詳細 |
|---|---|---|---|---|---|---|
| 5 | 20.96坪 | 286,000円/月(13,646円/坪) | 138万円 | 2026年1月中旬 |
…新着物件
アクセス
セルツェ芝浦の物件情報
セルツェ芝浦(港区芝浦)は日の出駅(東口)から徒歩7分の賃貸オフィスです。セルツェ芝浦は日の出駅(東口)の他に三田駅(A9番出口)徒歩8分、芝公園駅(A1番出口)徒歩10分で利用も可能です。

