6階は現在募集がありません
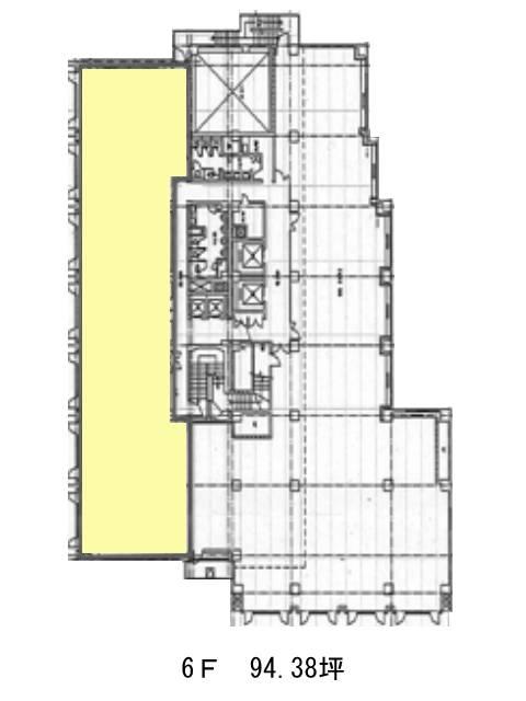
黒龍芝公園ビル 6階
物件概要
黒龍芝公園ビルのテナント募集中区画
現在、空室がございません。
アクセス
黒龍芝公園ビルの物件情報
黒龍芝公園ビル(港区芝公園)は芝公園駅(A3番出口)から徒歩1分の賃貸オフィスです。1978年竣工の地上9階、地下1階建ての物件です。外観は、とてもシンプルなデザインとなっており、エントランスやエレベーターホールはとても清潔感があり、落ち着いた空間となっております。また周辺にはコンビニや飲食店、郵便局などがあるためとても利便性が高いです。ビル内にはOAフロアが備えられており、個別空調完備、トイレは男女別となっているため設備面が充実しております。ほぼ整形オフィスのため、レイアウトも組みやすいでしょう。黒龍芝公園ビルは芝公園駅(A3番出口)の他に大門駅(A6番出口)徒歩7分、御成門駅(A1番出口)徒歩8分で利用も可能です。

