3階は現在募集がありません
苔香園ビル 3階
物件概要
苔香園ビルのテナント募集中区画
現在、空室がございません。
アクセス
苔香園ビルの物件情報
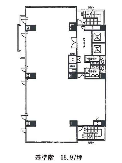
苔香園ビル(港区芝公園)は御成門駅(A3b番出口)から徒歩3分の賃貸オフィスです。1987年竣工の鉄骨鉄筋コンクリート造の基準階約68坪の物件です。周辺にはコンビニや飲食店があるため、ランチも楽しめるでしょう。ビル内はOAフロア、個別空調完備、トイレは男女別となっており設備面が充実しております。エレベーターも2基設置されており、セキュリティは機械警備を導入、耐震性も新耐震基準であるため、安心です。室内がほぼ長方形の整形オフィスのため、効率の良いレイアウトが組めそうです。苔香園ビルは御成門駅(A3b番出口)の他に大門駅(A6番出口)徒歩6分、芝公園駅(A3番出口)徒歩9分で利用も可能です。

