苔香園ビルのテナント募集中区画
| 階数 | 面積 | 賃料(共益費含む) | 保証金 | 入居可能日 | 検討リスト | 詳細 |
|---|---|---|---|---|---|---|
| 5 | 73.88坪 | 1,869,162円/月(25,300円/坪) | 875万円 | 即 |
…新着物件
苔香園ビルのアクセス
苔香園ビルの物件情報
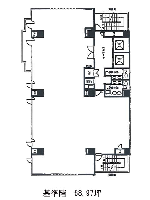
苔香園ビル(港区芝公園)は御成門駅(A3b番出口)から徒歩3分の賃貸オフィスです。1987年竣工の鉄骨鉄筋コンクリート造の基準階約68坪の物件です。周辺にはコンビニや飲食店があるため、ランチも楽しめるでしょう。ビル内はOAフロア、個別空調完備、トイレは男女別となっており設備面が充実しております。エレベーターも2基設置されており、セキュリティは機械警備を導入、耐震性も新耐震基準であるため、安心です。室内がほぼ長方形の整形オフィスのため、効率の良いレイアウトが組めそうです。苔香園ビルは御成門駅(A3b番出口)の他に大門駅(A6番出口)徒歩6分、芝公園駅(A3番出口)徒歩9分で利用も可能です。

