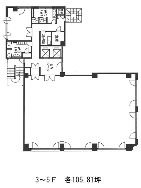
芝大門116ビルのテナント募集中区画
| 階数 | 面積 | 賃料(共益費含む) | 保証金 | 入居可能日 | 検討リスト | 詳細 |
|---|---|---|---|---|---|---|
| 5 | 96.31坪 | 応相談(応相談) | 応相談 | 2026年7月下旬 |
…新着物件
芝大門116ビルのアクセス
芝大門116ビルの物件情報
芝大門116ビル(港区芝大門)は大門駅(A4番出口)から徒歩2分の賃貸オフィスです。芝大門116ビルは大門駅(A4番出口)の他に浜松町駅(北口)徒歩5分、モノレール浜松町駅(中央口)徒歩6分で利用も可能です。

