Daiwa芝大門ビルのテナント募集中区画
| 階数 | 面積 | 賃料(共益費含む) | 保証金 | 入居可能日 | 検討リスト | 詳細 |
|---|---|---|---|---|---|---|
| 5 | 110.99坪 | 応相談(応相談) | 応相談 | 2026年5月上旬 |
…新着物件
Daiwa芝大門ビルのアクセス
Daiwa芝大門ビルの物件情報
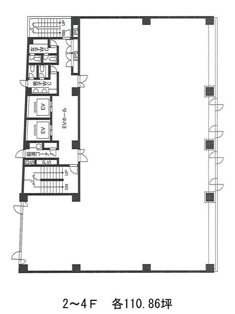
Daiwa芝大門ビル(港区芝大門)は大門駅(A6番出口)から徒歩5分の賃貸オフィスです。外観は全体的にグレーを基調とした色合いで、とてもシンプルなデザインとなっております。また周辺にはコンビニや飲食店、郵便局、銀行があるためとても利便性が高いです。ビル内にはエレベーター2基設置、OAフロアが備えられており、個別空調完備、トイレも男女別となっているため設備面は充実しております。駐車場も完備してあるため、社用車を使う場合も便利です。基準階は約111坪あり、室内はほぼ長方形の整形オフィスのため、効率の良いレイアウトが組めそうです。Daiwa芝大門ビルは大門駅(A6番出口)の他に芝公園駅(A3番出口)徒歩5分、浜松町駅(南口1)徒歩7分で利用も可能です。

