7階は現在募集がありません
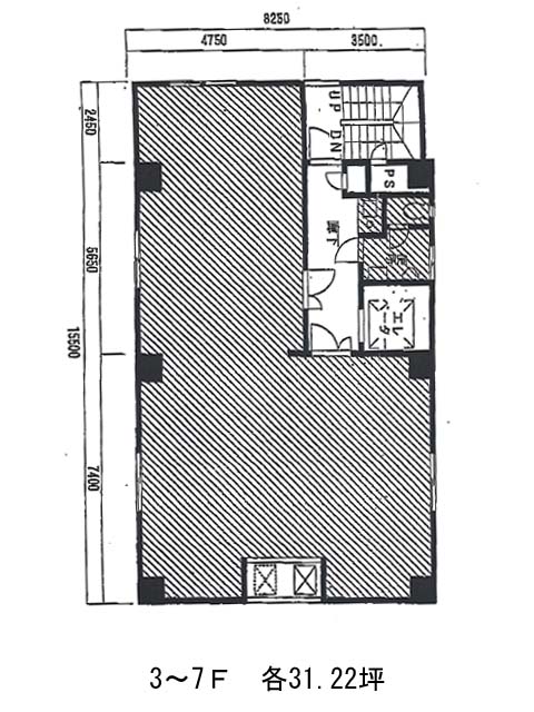
中根ビル 7階
物件概要
中根ビルのテナント募集中区画
現在、空室がございません。
中根ビルのアクセス
中根ビルの物件情報
中根ビル(港区芝大門)は大門駅(A3番出口)から徒歩1分の賃貸オフィスです。中根ビルは大門駅(A3番出口)の他に浜松町駅(北口)徒歩4分、モノレール浜松町駅(中央口)徒歩5分で利用も可能です。

