6階は現在募集がありません
芝大友ビル 6階
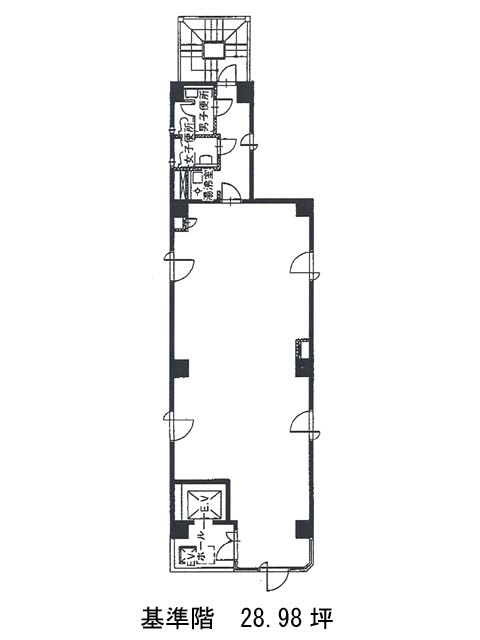
物件概要
芝大友ビルのテナント募集中区画
現在、空室がございません。
芝大友ビルのアクセス
芝大友ビルの物件情報
芝大友ビル(港区芝大門)は大門駅(A6番出口)から徒歩3分の賃貸オフィスです。芝大友ビルは大門駅(A6番出口)の他に芝公園駅(A3番出口)徒歩5分、浜松町駅(北口)徒歩7分で利用も可能です。

