1階は現在募集がありません
1フロア募集区画あり

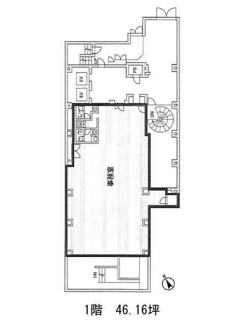
新橋フロンティアビルディング 1階

前の写真 次の写真

物件概要

物件番号

130-00014-30

物件名

新橋フロンティアビルディング

所在地

面積

46.16坪

賃料(共益費含)


入居日

募集終了

保証金

礼金

更新料

償却費

竣工

1993年3月

構造

SRC

規模

地上10階/地下2階

トイレ

男女別

空調

個別空調

エレベーター

セキュリティ

駐車場

耐震

新耐震基準

基準階天井高

2390mm

空室延床面積

52.92坪

最寄駅

情報更新日

2026/02/09

新橋フロンティアビルディングのテナント募集中区画

階数 面積 賃料(共益費含む) 保証金 入居可能日 検討リスト 詳細
7 52.92坪 応相談(応相談) 応相談
…新着物件

新橋フロンティアビルディングのアクセス

新橋フロンティアビルディングの物件情報

新橋フロンティアビルディング(港区新橋)は内幸町駅(A1番出口)から徒歩6分の賃貸オフィスです。
地上10階建ての物件ということもあり、上層階からの眺望は良好です。外観は全体的に白を基調としたタイル張りで、とてもシンプルなデザインとなっております。エントランスホールやエレベーターホールはとても落ち着いた空間となっております。また周辺にはコンビニや飲食店、郵便局、銀行などがあるためとても利便性が高いです。ビル内にはOAフロアが備えられており、トイレは男女別となっております。
新橋フロンティアビルディングは内幸町駅(A1番出口)の他に新橋駅(烏森口)徒歩6分、御成門駅(A4番出口)徒歩8分で利用も可能です。

近隣のエリア・駅から探す