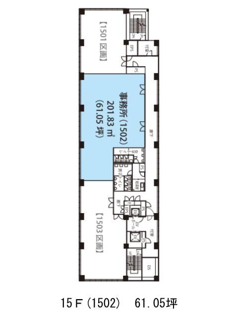
15階 1502は現在募集がありません
新橋プラザビル 15階 1502
物件概要
新橋プラザビルのテナント募集中区画
現在、空室がございません。
新橋プラザビルのアクセス
新橋プラザビルの物件情報
新橋プラザビル(港区新橋)は新橋駅(A1番出口)から徒歩4分の賃貸オフィスです。新橋プラザビルは新橋駅(A1番出口)の他に汐留駅(出口2)徒歩6分、内幸町駅(A1番出口)徒歩9分で利用も可能です。

