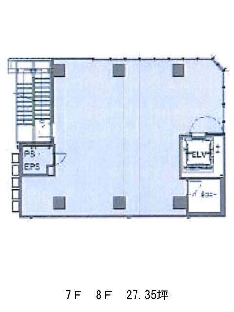
愛場新橋タワー/AIBA SHINBASHI TOWERのテナント募集中区画
| 階数 | 面積 | 賃料(共益費含む) | 保証金 | 入居可能日 | 検討リスト | 詳細 |
|---|---|---|---|---|---|---|
| 4 | 27.06坪 | 1,190,640円/月(44,000円/坪) | 865万円 | 即 |
…新着物件
アクセス
愛場新橋タワー/AIBA SHINBASHI TOWERの物件情報
愛場新橋タワー/AIBA SHINBASHI TOWER(港区新橋)は新橋駅(A1番出口)から徒歩5分の賃貸オフィスです。愛場新橋タワー/AIBA SHINBASHI TOWERは新橋駅(A1番出口)の他に汐留駅(8番出口)徒歩6分、内幸町駅(A1番出口)徒歩8分で利用も可能です。

