PMO新橋のテナント募集中区画
| 階数 | 面積 | 賃料(共益費含む) | 保証金 | 入居可能日 | 検討リスト | 詳細 |
|---|---|---|---|---|---|---|
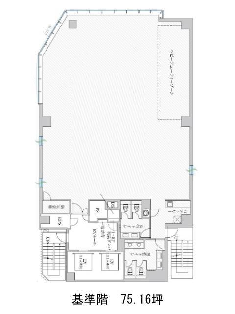
| 7 | 75.16坪 | 応相談(応相談) | 応相談 | 2026年3月上旬 |
…新着物件
アクセス
PMO新橋の物件情報
PMO新橋(港区新橋)は御成門駅(A4番出口)から徒歩4分の賃貸オフィスです。2023年4月竣工の地上9階建新築ビルです。外観はミラーガラスと黒い壁面でシャープなデザイン。エントランスはモノトーンを基調としています。室内の一部がヘビーデューティーゾーンになっており、サーバー等の置き場所として良いでしょう。EV2基・貸室外の男女別トイレ・パントリー・非常階段2箇所があり、OAフロア・個別空調となります。2面採光で明るい室内が期待できるでしょう。建物入口と貸室入口2箇所にICカードリーダーがあり安心のセキュリティです。PMO新橋は御成門駅(A4番出口)の他に大門駅(A6番出口)徒歩9分、新橋駅(A1番出口)徒歩9分で利用も可能です。

