9階は現在募集がありません
1フロア募集区画あり

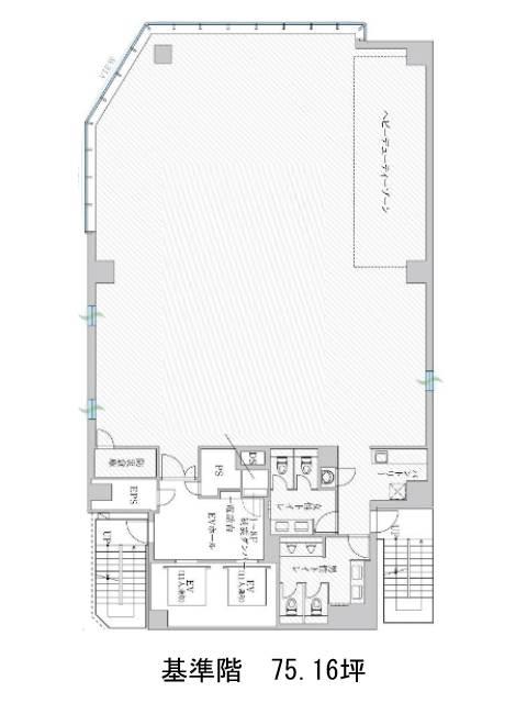
PMO新橋 9階

前の写真 次の写真

物件概要

物件番号

130-00729-8

物件名

PMO新橋

所在地

面積

75.16坪

賃料(共益費含)


入居日

募集終了

保証金

礼金

更新料

償却費

竣工

2023年4月

構造

S造

規模

地上9階

トイレ

男女別

空調

個別空調

エレベーター

セキュリティ

駐車場

耐震

新耐震基準

基準階天井高

2750mm

空室延床面積

75.16坪

最寄駅

情報更新日

2026/02/06

PMO新橋のテナント募集中区画

階数 面積 賃料(共益費含む) 保証金 入居可能日 検討リスト 詳細
7 75.16坪 応相談(応相談) 応相談 2026年3月上旬
…新着物件

PMO新橋のアクセス

PMO新橋の物件情報

PMO新橋(港区新橋)は御成門駅(A4番出口)から徒歩4分の賃貸オフィスです。
2023年4月竣工の地上9階建新築ビルです。外観はミラーガラスと黒い壁面でシャープなデザイン。エントランスはモノトーンを基調としています。室内の一部がヘビーデューティーゾーンになっており、サーバー等の置き場所として良いでしょう。EV2基・貸室外の男女別トイレ・パントリー・非常階段2箇所があり、OAフロア・個別空調となります。2面採光で明るい室内が期待できるでしょう。建物入口と貸室入口2箇所にICカードリーダーがあり安心のセキュリティです。
PMO新橋は御成門駅(A4番出口)の他に大門駅(A6番出口)徒歩9分、新橋駅(A1番出口)徒歩9分で利用も可能です。

近隣のエリア・駅から探す