Victory Aoyama 3-4F
物件概要
Victory Aoyamaのテナント募集中区画
| 階数 | 面積 | 賃料(共益費含む) | 保証金 | 入居可能日 | 検討リスト | 詳細 |
|---|---|---|---|---|---|---|
| 1-4F | 71.67坪 | 2,365,110円/月(33,000円/坪) | 1,354万円 | 相談 | ||
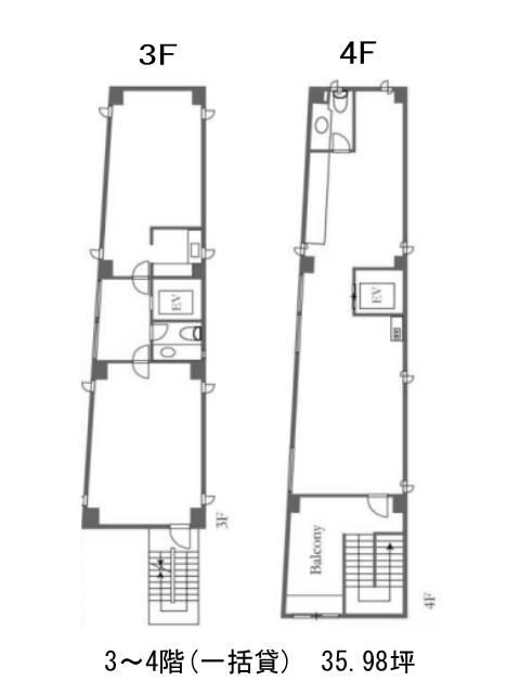
| 3-4F | 35.98坪 | 1,503,964円/月(41,800円/坪) | 957万円 | 即 |
…新着物件
アクセス
Victory Aoyamaの物件情報
Victory Aoyama(港区南青山)は表参道駅(B1番出口)から徒歩10分の賃貸オフィスです。

