2階は現在募集がありません
1フロア募集区画あり

浜松町エムプレスビル 2階

前の写真 次の写真

物件概要

物件番号

141-00104-20

物件名

浜松町エムプレスビル

所在地

面積

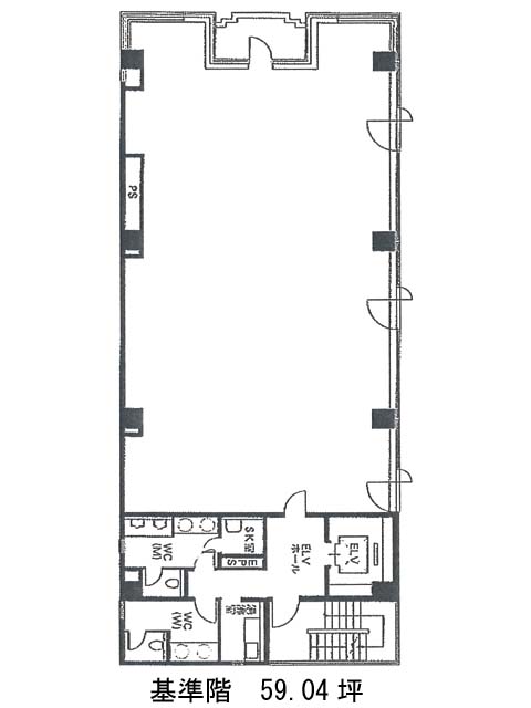
59.04坪

賃料(共益費含)


入居日

募集終了

保証金

礼金

更新料

償却費

竣工

1990年10月

構造

RC

規模

地上6階

トイレ

男女別

空調

個別空調

エレベーター

セキュリティ

駐車場

耐震

新耐震基準

基準階天井高

空室延床面積

59.04坪

最寄駅

情報更新日

2026/04/06

浜松町エムプレスビルのテナント募集中区画

階数 面積 賃料(共益費含む) 保証金 入居可能日 検討リスト 詳細
6 59.04坪 応相談(応相談) 応相談 2026年5月上旬
…新着物件

浜松町エムプレスビルのアクセス

浜松町エムプレスビルの物件情報

浜松町エムプレスビル(港区浜松町)は浜松町駅(南口1)から徒歩3分の賃貸オフィスです。
1990年竣工、地上6階RC造のビルです。59坪台の貸室がそろい、小規模の事務所をお探しの方に良いでしょう。EV・駐車場・個別空調・給湯室・執務室外の男女別トイレといった設備仕様をしています。床下に配線を格納できるOAフロアを導入しています。間取りは長方形で、支柱が中央に無いため、配置がしやすいでしょう。水まわり等の共用部が事務所の外に集約されており、貸室を効率よくご利用頂けるでしょう。
浜松町エムプレスビルは浜松町駅(南口1)の他にモノレール浜松町駅(中央口)徒歩3分、大門駅(B2番出口)徒歩5分で利用も可能です。

近隣のエリア・駅から探す