浜松町エムプレスビルのテナント募集中区画
| 階数 | 面積 | 賃料(共益費含む) | 保証金 | 入居可能日 | 検討リスト | 詳細 |
|---|---|---|---|---|---|---|
| 6 | 59.04坪 | 応相談(応相談) | 応相談 | 2026年5月上旬 |
…新着物件
浜松町エムプレスビルのアクセス
浜松町エムプレスビルの物件情報
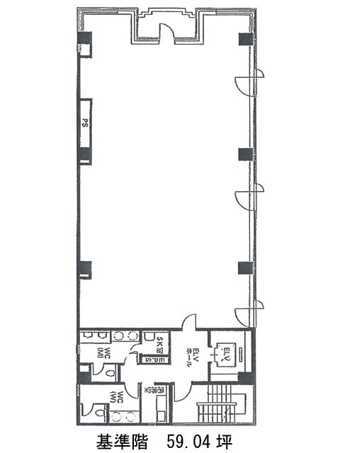
浜松町エムプレスビル(港区浜松町)は浜松町駅(南口1)から徒歩3分の賃貸オフィスです。1990年竣工、地上6階RC造のビルです。59坪台の貸室がそろい、小規模の事務所をお探しの方に良いでしょう。EV・駐車場・個別空調・給湯室・執務室外の男女別トイレといった設備仕様をしています。床下に配線を格納できるOAフロアを導入しています。間取りは長方形で、支柱が中央に無いため、配置がしやすいでしょう。水まわり等の共用部が事務所の外に集約されており、貸室を効率よくご利用頂けるでしょう。浜松町エムプレスビルは浜松町駅(南口1)の他にモノレール浜松町駅(中央口)徒歩3分、大門駅(B2番出口)徒歩5分で利用も可能です。

