6階は現在募集がありません
4フロア募集区画あり

VORT浜松町Ⅳ 6階

前の写真 次の写真

物件概要

物件番号

141-00315-6

物件名

VORT浜松町Ⅳ

所在地

面積

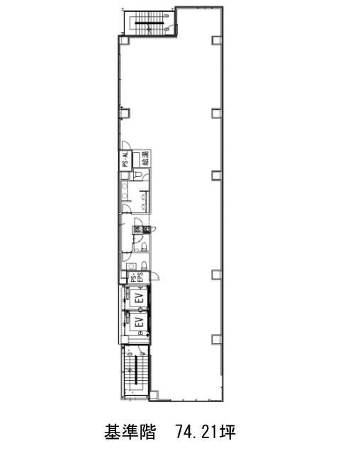
74.21坪

賃料(共益費含)


入居日

募集終了

保証金

礼金

更新料

償却費

竣工

2023年8月

構造

S造

規模

地上10階

トイレ

男女別

空調

個別空調

エレベーター

セキュリティ

駐車場

耐震

新耐震基準

基準階天井高

3875mm

空室延床面積

294.84坪

最寄駅

情報更新日

2025/11/26

VORT浜松町Ⅳのテナント募集中区画

階数 面積 賃料(共益費含む) 保証金 入居可能日 検討リスト 詳細
2 73.71坪 応相談(応相談) 応相談
6 73.71坪 応相談(応相談) 応相談
7 73.71坪 応相談(応相談) 応相談
8 73.71坪 応相談(応相談) 応相談
…新着物件

アクセス

VORT浜松町Ⅳの物件情報

VORT浜松町Ⅳ(港区浜松町)は大門駅(A2番出口)から徒歩1分の賃貸オフィスです。
2023年8月竣工、地上10階建S造の新築ビルです。白いタイル貼りの壁面に、一部木目調を取り入れデザイン性の高い外観をしています。共用部は白を基調とした明るい内装。壁面緑化を取り入れ、憩いの空間となるでしょう。EV2基・空調・パントリー・駐車場・非常階段2箇所といった設備仕様が揃います。1~10階の総面積は653坪となります。間取りは細長い長方形で中央に支柱が無く、すっきりとした形状をしています。
VORT浜松町Ⅳは大門駅(A2番出口)の他に浜松町駅(北口)徒歩4分、モノレール浜松町駅(中央口)徒歩6分で利用も可能です。

近隣のエリア・駅から探す