VORT浜松町Ⅳのテナント募集中区画
| 階数 | 面積 | 賃料(共益費含む) | 保証金 | 入居可能日 | 検討リスト | 詳細 |
|---|---|---|---|---|---|---|
| 2 | 73.71坪 | 応相談(応相談) | 応相談 | 即 | ||
| 6 | 73.71坪 | 応相談(応相談) | 応相談 | 即 | ||
| 7 | 73.71坪 | 応相談(応相談) | 応相談 | 即 | ||
| 8 | 73.71坪 | 応相談(応相談) | 応相談 | 即 |
…新着物件
アクセス
VORT浜松町Ⅳの物件情報
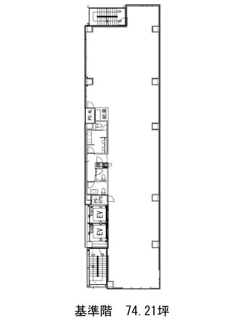
VORT浜松町Ⅳ(港区浜松町)は大門駅(A2番出口)から徒歩1分の賃貸オフィスです。2023年8月竣工、地上10階建S造の新築ビルです。白いタイル貼りの壁面に、一部木目調を取り入れデザイン性の高い外観をしています。共用部は白を基調とした明るい内装。壁面緑化を取り入れ、憩いの空間となるでしょう。EV2基・空調・パントリー・駐車場・非常階段2箇所といった設備仕様が揃います。1~10階の総面積は653坪となります。間取りは細長い長方形で中央に支柱が無く、すっきりとした形状をしています。VORT浜松町Ⅳは大門駅(A2番出口)の他に浜松町駅(北口)徒歩4分、モノレール浜松町駅(中央口)徒歩6分で利用も可能です。

