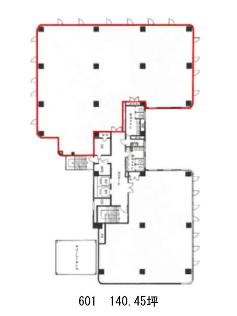
6階 601は現在募集がありません
浜松町262ビル 6階 601
物件概要
浜松町262ビルのテナント募集中区画
現在、空室がございません。
浜松町262ビルのアクセス
浜松町262ビルの物件情報
浜松町262ビル(港区浜松町)は浜松町駅(南口1)から徒歩3分の賃貸オフィスです。外観はグレーのタイル張りで、窓がライン状に並んでいるため、全体的に統一感があります。ビル内にはOAフロアが備えられており、個別空調も完備されていて、トイレも男女別となっているため設備面は充実しております。駐車場も完備してあるため、車の利用もしやすい環境となっております。そしてセキュリティは機械警備を導入していて、耐震性も新耐震基準であるため、安心です。地下は飲食店街となっており、周辺にはコンビニや飲食店などが複数あるため、ランチも楽しめるでしょう。浜松町262ビルは浜松町駅(南口1)の他に大門駅(B4番出口)徒歩4分、モノレール浜松町駅(中央口)徒歩4分で利用も可能です。

