モンテプラザ麻布 5階 501
物件概要
物件番号
144-00151-50物件名
モンテプラザ麻布所在地
- 東京都港区麻布十番1-10-3
- アクセスマップ
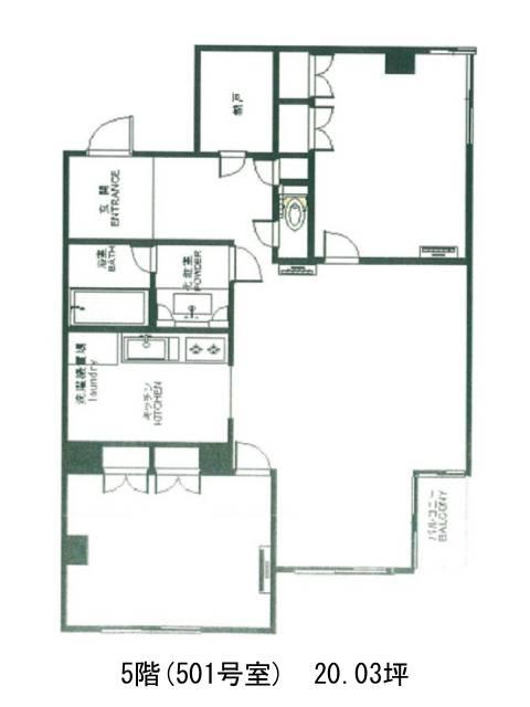
面積
20.03坪賃料(共益費含)
月額434,000円(21,667円/坪)
入居日
即保証金
789,102円礼金
なし更新料
なし償却費
なし竣工
1982年4月構造
SRC規模
地上10階/地下1階トイレ
男女共用空調
個別空調エレベーター
有セキュリティ
有駐車場
有耐震
確認中基準階天井高
空室延床面積
41.77坪情報更新日
2025/10/27モンテプラザ麻布のテナント募集中区画
| 階数 | 面積 | 賃料(共益費含む) | 保証金 | 入居可能日 | 検討リスト | 詳細 |
|---|---|---|---|---|---|---|
| 5 | 20.03坪 | 434,000円/月(21,667円/坪) | 78万円 | 即 | ||
| 9 | 21.74坪 | 390,013円/月(17,939円/坪) | 70万円 | 即 |
…新着物件
アクセス
モンテプラザ麻布の物件情報
モンテプラザ麻布(港区麻布十番)は麻布十番駅(5a番出口)から徒歩1分の賃貸オフィスです。モンテプラザ麻布は麻布十番駅(5a番出口)の他に赤羽橋駅(中之橋口)徒歩10分、六本木駅(1b番出口)徒歩13分で利用も可能です。

