17階は現在募集がありません
1フロア募集区画あり
六本木ファーストビル 17階
物件概要
物件番号
147-00043-354物件名
六本木ファーストビル所在地
- 東京都港区六本木1-9-9
- アクセスマップ
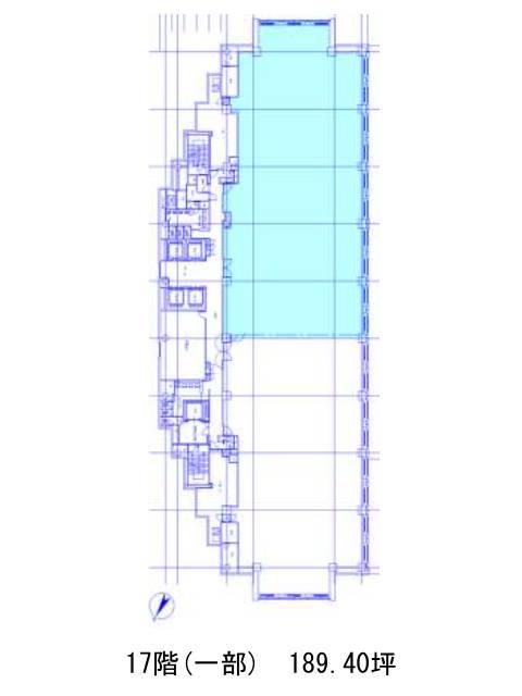
面積
189.40坪賃料(共益費含)
−入居日
募集終了保証金
−礼金
−更新料
−償却費
−竣工
1993年10月構造
規模
地上20階/地下4階トイレ
男女別空調
セントラルエレベーター
有セキュリティ
有駐車場
有耐震
新耐震基準基準階天井高
2630mm空室延床面積
125.10坪情報更新日
2026/01/09六本木ファーストビルのテナント募集中区画
| 階数 | 面積 | 賃料(共益費含む) | 保証金 | 入居可能日 | 検討リスト | 詳細 |
|---|---|---|---|---|---|---|
| 1 | 125.10坪 | 応相談(応相談) | 応相談 | 2026年1月下旬 |
…新着物件
アクセス
六本木ファーストビルの物件情報
六本木ファーストビル(港区六本木)は六本木一丁目駅(2番出口)から徒歩4分の賃貸オフィスです。1993年竣工、地上20階地下4階建のビルです。フロアは階段状の特徴的な形状をしていますが、共用部を1箇所にまとめており使い勝手が良いでしょう。貸室の間取りはすっきりとした長方形になります。一部ヘビーデューティーゾーンがあり、重量のある機器の置き場所に良いでしょう。EV9基・181台分の平置き駐車場・機械警備・セントラル空調とABU空調の併用・貸室外の男女別トイレ・OAフロアといった充実の設備仕様。オフィスは24時間使用可能です。六本木ファーストビルは六本木一丁目駅(2番出口)の他に神谷町駅(2番出口)徒歩8分、溜池山王駅(13番出口)徒歩10分で利用も可能です。

