4階は現在募集がありません
黒崎ビル 4階
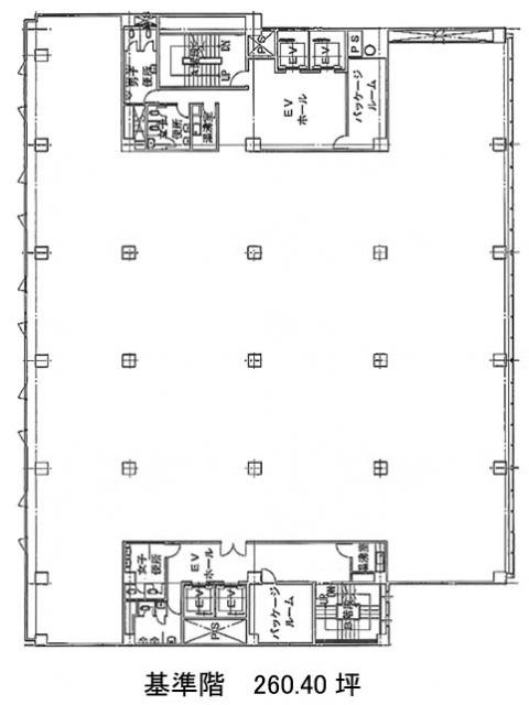
物件概要
黒崎ビルのテナント募集中区画
現在、空室がございません。
黒崎ビルのアクセス
黒崎ビルの物件情報
黒崎ビル(港区六本木)は六本木一丁目駅(出口)から徒歩4分の賃貸オフィスです。黒崎ビルは六本木一丁目駅(出口)の他に六本木駅(6番出口)徒歩5分、溜池山王駅(13番出口)徒歩9分で利用も可能です。

