Daiwa笹塚ビル 6階 A
物件概要
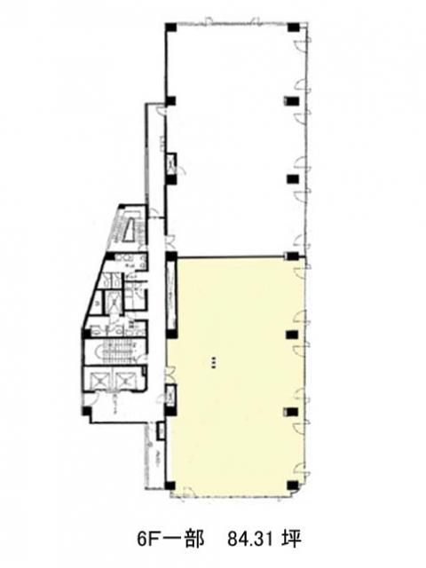
Daiwa笹塚ビルのテナント募集中区画
| 階数 | 面積 | 賃料(共益費含む) | 保証金 | 入居可能日 | 検討リスト | 詳細 |
|---|---|---|---|---|---|---|
| 6 | 84.31坪 | 応相談(応相談) | 応相談 | 2026年5月上旬 | ||
| 6 | 83.33坪 | 応相談(応相談) | 応相談 | 2026年3月中旬 |
…新着物件
アクセス
Daiwa笹塚ビルの物件情報
Daiwa笹塚ビル(渋谷区笹塚)は代田橋駅(北口)から徒歩6分の賃貸オフィスです。当ビルは1992年竣工、SRC構造・地上8階地下1階建てで新耐震基準に対応。甲州街道沿いに広く接道した立地に加え、堂々としたスケール感のある外観が特徴で、笹塚エリアを代表するビルの一つとして知られています。
基準階は約168坪の整形区画で、室内には柱がなく、使い勝手の良い無柱空間を実現。レイアウト自由度が非常に高く、業種や規模を問わず対応しやすい設計です。水回りは共用部に設置されており、貸室内をフルに活用できる点も見逃せません。実際に、50坪強・80坪強での分割実績もあり、ニーズに応じた柔軟な運用が可能です。
OAフロア・個別空調・光ファイバー・男女別トイレ・24時間利用可能と、機能面も充実。エレベーターは2基設置されており、混雑を回避しながらのスムーズな移動が確保されています。Daiwa笹塚ビルは代田橋駅(北口)の他に笹塚駅(出口)徒歩9分で利用も可能です。

