八千代ビル 7階
物件概要
八千代ビルのテナント募集中区画
| 階数 | 面積 | 賃料(共益費含む) | 保証金 | 入居可能日 | 検討リスト | 詳細 |
|---|---|---|---|---|---|---|
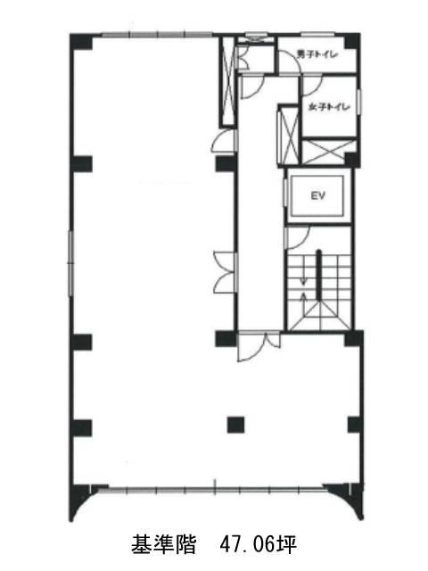
| 2 | 47.06坪 | 905,905円/月(19,250円/坪) | 494万円 | 相談 | ||
| 4 | 47.06坪 | 880,022円/月(18,700円/坪) | 480万円 | 2026年3月 | ||
| 7 | 47.06坪 | 880,000円/月(18,700円/坪) | 480万円 | 即 |
…新着物件
八千代ビルのアクセス
八千代ビルの物件情報
八千代ビル(渋谷区渋谷)は渋谷駅(C1番出口)から徒歩7分の賃貸オフィスです。六本木通りに面して立地しています。グレーの直線的な外観は、堅固でスタイリッシュな印象があります。2012年と2013年に外装や共用部のリニューアル工事を完了していますので、内観にも清潔感があり、落ち着いた雰囲気の中で業務に集中できそうです。ビル内にはOAフロア、個別空調が完備されていて、トイレも男女別となっています。セキュリティ面は機械警備を導入しているため、安心です。また周辺にはコンビニや飲食店などが複数あるため、ランチも楽しめるでしょう。八千代ビルは渋谷駅(C1番出口)の他に表参道駅(B1番出口)徒歩10分で利用も可能です。

