3階は現在募集がありません
1フロア募集区画あり

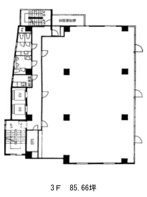
渋谷TKビル 3階

前の写真 次の写真

物件概要

物件番号

166-00094-20

物件名

渋谷TKビル

所在地

面積

85.66坪

賃料(共益費含)


入居日

募集終了

保証金

礼金

更新料

償却費

竣工

1991年7月

構造

SRC

規模

地上10階/地下1階

トイレ

男女別

空調

個別空調

エレベーター

セキュリティ

駐車場

耐震

新耐震基準

基準階天井高

2500mm

空室延床面積

53.87坪

最寄駅

情報更新日

2025/12/04

渋谷TKビルのテナント募集中区画

階数 面積 賃料(共益費含む) 保証金 入居可能日 検討リスト 詳細
8 53.87坪 1,599,939円/月(29,700円/坪) 1,292万円 2026年2月上旬
…新着物件

アクセス

渋谷TKビルの物件情報

渋谷TKビル(渋谷区渋谷)は渋谷駅(新南口)から徒歩5分の賃貸オフィスです。
外観は全体的にシックな色合いで、前面ガラス張りになっているため、とても視認性が高いです。また周辺にはコンビニや飲食店、郵便局などがあるため、利便性が高いです。室内は長方形の整形オフィスのため、効率の良いレイアウトが組めそうです。ビル内には個別空調が完備されており、トイレは男女別となっております。エレベーターは2基設置されており、セキュリティは機械警備を導入、耐震性は新耐震基準であるため、安心です。
渋谷TKビルは渋谷駅(新南口)の他に代官山駅(西口)徒歩15分、表参道駅(B1番出口)徒歩15分で利用も可能です。

近隣のエリア・駅から探す