X-BASE SHIBUYA 1階 101
物件概要
物件番号
168-00073-1物件名
X-BASE SHIBUYA所在地
- 東京都渋谷区松濤2-15-13
- アクセスマップ
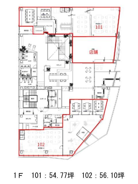
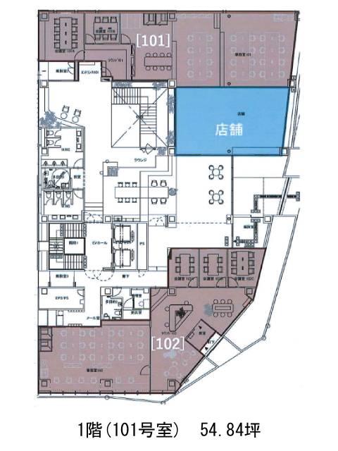
面積
54.84坪賃料(共益費含)
月額2,233,492円(40,727円/坪)
入居日
即保証金
12,182,706円礼金
なし更新料
なし償却費
なし竣工
2011年5月構造
S造規模
地上6階/地下1階トイレ
男女別空調
個別空調エレベーター
有セキュリティ
有駐車場
有耐震
新耐震基準基準階天井高
空室延床面積
523.19坪情報更新日
2026/02/26X-BASE SHIBUYAのテナント募集中区画
…新着物件
X-BASE SHIBUYAのアクセス
X-BASE SHIBUYAの物件情報
X-BASE SHIBUYA(渋谷区松濤)は神泉駅(西口)から徒歩5分の賃貸オフィスです。X-BASE SHIBUYAは神泉駅(西口)の他に駒場東大前駅(東口)徒歩9分、渋谷駅(A0番出口)徒歩11分で利用も可能です。

