3階は現在募集がありません
1フロア募集区画あり

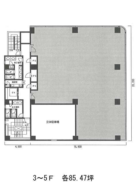
マリービル 3階

前の写真 次の写真

物件概要

物件番号

173-00020-10

物件名

マリービル

所在地

面積

85.47坪

賃料(共益費含)


入居日

募集終了

保証金

礼金

更新料

償却費

竣工

1992年12月

構造

RC

規模

地上6階

トイレ

男女別

空調

個別空調

エレベーター

セキュリティ

駐車場

耐震

新耐震基準

基準階天井高

2590mm

空室延床面積

85.47坪

最寄駅

情報更新日

2026/01/19

マリービルのテナント募集中区画

階数 面積 賃料(共益費含む) 保証金 入居可能日 検討リスト 詳細
5 85.47坪 応相談(応相談) 応相談 2026年3月上旬
…新着物件

アクセス

マリービルの物件情報

マリービル(渋谷区神南)は渋谷駅(B1番出口)から徒歩7分の賃貸オフィスです。
マリービルは渋谷駅(B1番出口)の他に明治神宮前駅(1番出口)徒歩11分、原宿駅(西口)徒歩12分で利用も可能です。

近隣のエリア・駅から探す