マリービル 5階
物件概要
物件番号
173-00020-30物件名
マリービル所在地
- 東京都渋谷区神南1-15-1
- アクセスマップ
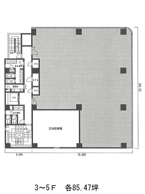
面積
85.47坪賃料(共益費含)
:応相談応相談
入居日
2026年3月上旬保証金
応相談礼金
なし更新料
なし償却費
なし竣工
1992年12月構造
RC規模
地上6階トイレ
男女別空調
個別空調エレベーター
有セキュリティ
有駐車場
有耐震
新耐震基準基準階天井高
2580mm空室延床面積
85.47坪情報更新日
2026/03/02マリービルのテナント募集中区画
| 階数 | 面積 | 賃料(共益費含む) | 保証金 | 入居可能日 | 検討リスト | 詳細 |
|---|---|---|---|---|---|---|
| 5 | 85.47坪 | 応相談(応相談) | 応相談 | 2026年3月上旬 |
…新着物件
マリービルのアクセス
マリービルの物件情報
マリービル(渋谷区神南)は渋谷駅(B1番出口)から徒歩7分の賃貸オフィスです。マリービルは渋谷駅(B1番出口)の他に明治神宮前駅(1番出口)徒歩11分、原宿駅(西口)徒歩12分で利用も可能です。

