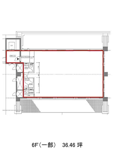
マリービルのテナント募集中区画
| 階数 | 面積 | 賃料(共益費含む) | 保証金 | 入居可能日 | 検討リスト | 詳細 |
|---|---|---|---|---|---|---|
| 5 | 85.47坪 | 応相談(応相談) | 応相談 | 2026年3月上旬 |
…新着物件
マリービルのアクセス
マリービルの物件情報
マリービル(渋谷区神南)は渋谷駅(B1番出口)から徒歩7分の賃貸オフィスです。マリービルは渋谷駅(B1番出口)の他に明治神宮前駅(1番出口)徒歩11分、原宿駅(西口)徒歩12分で利用も可能です。

