2階は現在募集がありません
1フロア募集区画あり

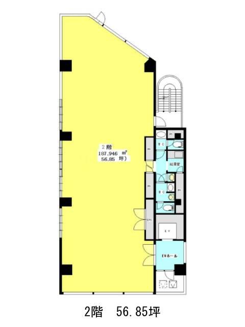
江戸川橋アクセスビル 2階

前の写真 次の写真

物件概要

物件番号

207-00001-20

物件名

江戸川橋アクセスビル

所在地

面積

56.85坪

賃料(共益費含)


入居日

募集終了

保証金

礼金

更新料

償却費

竣工

1992年12月

構造

SRC

規模

地上10階

トイレ

男女別

空調

個別空調

エレベーター

セキュリティ

駐車場

耐震

新耐震基準

基準階天井高

2630mm

空室延床面積

48.58坪

最寄駅

情報更新日

2026/02/26

江戸川橋アクセスビルのテナント募集中区画

階数 面積 賃料(共益費含む) 保証金 入居可能日 検討リスト 詳細
5 48.58坪 694,694円/月(14,300円/坪) 378万円 相談
…新着物件

江戸川橋アクセスビルのアクセス

江戸川橋アクセスビルの物件情報

江戸川橋アクセスビル(新宿区山吹町)は江戸川橋駅(2番出口)から徒歩5分の賃貸オフィスです。
白のフレームとガラスを基調とした端正な外観が特徴の物件です。
基準階は48.58坪。長方形に近い無柱空間で、OAフロアとあわせて効率的なレイアウトが可能。男女別トイレ・給湯スペースなど水回りは全て室内にまとまっており、専有性も確保されています。
周辺は学生街としても知られているエリア。周辺は飲食店が点在しているため、お気に入りの店を探すことも楽しみのひとつになりそうです。
江戸川橋アクセスビルは江戸川橋駅(2番出口)の他に神楽坂駅(2番出口)徒歩9分、早稲田駅(1番出口)徒歩12分で利用も可能です。

近隣のエリア・駅から探す