江戸川橋アクセスビルのテナント募集中区画
| 階数 | 面積 | 賃料(共益費含む) | 保証金 | 入居可能日 | 検討リスト | 詳細 |
|---|---|---|---|---|---|---|
| 5 | 48.58坪 | 694,694円/月(14,300円/坪) | 378万円 | 相談 |
…新着物件
江戸川橋アクセスビルのアクセス
江戸川橋アクセスビルの物件情報
江戸川橋アクセスビル(新宿区山吹町)は江戸川橋駅(2番出口)から徒歩5分の賃貸オフィスです。白のフレームとガラスを基調とした端正な外観が特徴の物件です。
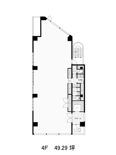
基準階は48.58坪。長方形に近い無柱空間で、OAフロアとあわせて効率的なレイアウトが可能。男女別トイレ・給湯スペースなど水回りは全て室内にまとまっており、専有性も確保されています。
周辺は学生街としても知られているエリア。周辺は飲食店が点在しているため、お気に入りの店を探すことも楽しみのひとつになりそうです。江戸川橋アクセスビルは江戸川橋駅(2番出口)の他に神楽坂駅(2番出口)徒歩9分、早稲田駅(1番出口)徒歩12分で利用も可能です。

