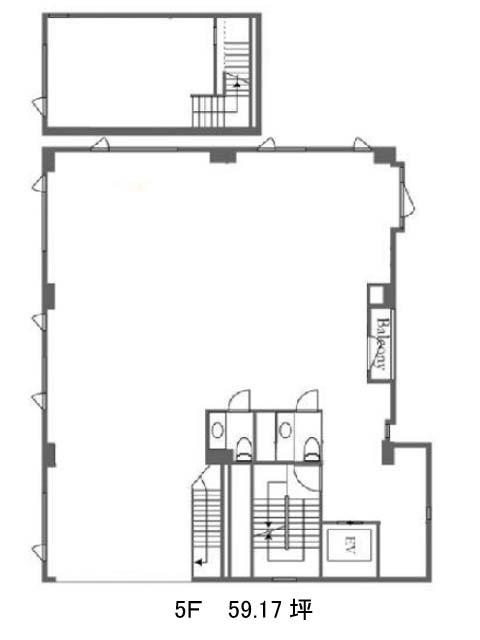
グランドマイスター一番町/一番町館のテナント募集中区画
| 階数 | 面積 | 賃料(共益費含む) | 保証金 | 入居可能日 | 検討リスト | 詳細 |
|---|---|---|---|---|---|---|
| 1 | 46.16坪 | 1,015,520円/月(22,000円/坪) | 461万円 | 即 |
…新着物件
グランドマイスター一番町/一番町館のアクセス
グランドマイスター一番町/一番町館の物件情報
グランドマイスター一番町/一番町館(千代田区一番町)は半蔵門駅(5番出口)から徒歩5分の賃貸オフィスです。番町文人通りに面したビルです。外観はベージュの石張りで高級感溢れるモダンなデザインです。2005年竣工の綺麗なビルです。室内は過ごしやすい男女別トイレと給湯室があります。また、警備は機械警備でセキュリティー管理はしっかりと対応されています。周囲には大使館や学校などもあり、静かで落ち着いた雰囲気のエリアのため、静かなところで集中してお仕事をされたい企業様にはピッタリでしょう。コンビニ、スーパーが近くにあるので、ちょっとした買い物をするのにも便利です。グランドマイスター一番町/一番町館は半蔵門駅(5番出口)の他に麹町駅(6番出口)徒歩6分、市ヶ谷駅(A3番出口)徒歩6分で利用も可能です。

