鎌形ビルのテナント募集中区画
| 階数 | 面積 | 賃料(共益費含む) | 保証金 | 入居可能日 | 検討リスト | 詳細 |
|---|---|---|---|---|---|---|
| 1 | 21.15坪 | 325,710円/月(15,400円/坪) | 118万円 | 即 | ||
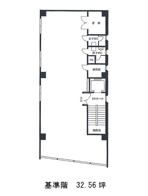
| 3 | 32.56坪 | 501,424円/月(15,400円/坪) | 182万円 | 即 |
…新着物件
アクセス
鎌形ビルの物件情報
鎌形ビル(千代田区神田猿楽町)は神保町駅(A5番出口)から徒歩6分の賃貸オフィスです。前面ガラス張りのスタイリッシュなオフィスビルです。隣がガソリンスタンドなので道案内もわかりやすく、外観も特徴的で視認性は良好でしょう。エレベーターは1基です。フロアは長方形で、中央に柱がないのでデスク等の設置がしやすい間取りです。トイレは男女別になっています。給湯室とトイレは室内にあります。窓が多く、採光性に優れているので明るい空間です。鎌形ビルは神保町駅(A5番出口)の他に御茶ノ水駅(御茶ノ水橋口)徒歩8分、水道橋駅(東口)徒歩9分で利用も可能です。

