6階は現在募集がありません

千代田ビル 6階

前の写真 次の写真

物件概要

物件番号

379-00048-102

物件名

千代田ビル

所在地

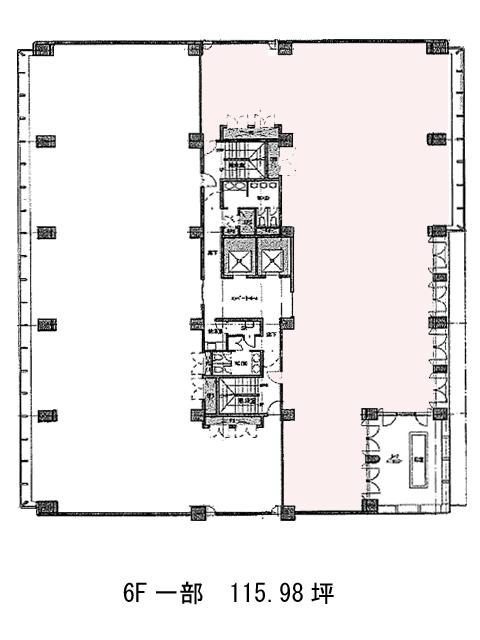
面積

115.98坪

賃料(共益費含)


入居日

募集終了

保証金

礼金

更新料

償却費

竣工

1990年10月

構造

SRC

規模

地上9階/地下1階

トイレ

男女別

空調

個別空調

エレベーター

セキュリティ

駐車場

耐震

新耐震基準

基準階天井高

2450mm

空室延床面積

最寄駅

情報更新日

2025/02/18

千代田ビルのテナント募集中区画

現在、空室がございません。

千代田ビルのアクセス

千代田ビルの物件情報

千代田ビル(千代田区神田猿楽町)は神保町駅(A5番出口)から徒歩6分の賃貸オフィスです。
猿楽町エリアの閑静なオフィス街に立地するビルです。アプローチ部分には植栽が手入れされています。エントランスは広く、美しい絵画が目を引きます。綺麗な共用スペースは、来客時にも良い印象を与えるでしょう。専有部は長方形に近く、レイアウトがしやすい間取りです。フリーアクセス、男女別トイレ、機械警備を備えています。大きなビルならではの充実した設備が揃っています。
千代田ビルは神保町駅(A5番出口)の他に御茶ノ水駅(御茶ノ水橋口)徒歩7分、新御茶ノ水駅(B3b番出口)徒歩9分で利用も可能です。

近隣のエリア・駅から探す