2階は現在募集がありません
1フロア募集区画あり

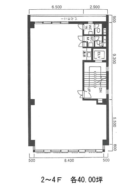
セイキ第2ビル 2階

前の写真 次の写真

物件概要

物件番号

381-00141-10

物件名

セイキ第2ビル

所在地

面積

40.00坪

賃料(共益費含)


入居日

募集終了

保証金

礼金

更新料

償却費

竣工

1973年7月

構造

SRC

規模

地上7階

トイレ

男女別

空調

個別空調

エレベーター

セキュリティ

駐車場

耐震

旧耐震基準

基準階天井高

2450mm

空室延床面積

40.00坪

最寄駅

情報更新日

2026/03/03

セイキ第2ビルのテナント募集中区画

階数 面積 賃料(共益費含む) 保証金 入居可能日 検討リスト 詳細
3 40.00坪 484,000円/月(12,100円/坪) 308万円 2026年4月上旬
…新着物件

セイキ第2ビルのアクセス

セイキ第2ビルの物件情報

セイキ第2ビル(千代田区外神田)は末広町駅(2番出口)から徒歩3分の賃貸オフィスです。
1973年竣工、地上7階建てRC造のビルです。アイボリーの外壁で明るくすっきりとした外観デザインをしています。基準階面積は40坪と、中規模のオフィスをお探しの会社によいでしょう。フロアの1箇所に共用部が集まり、設備仕様としては、EV・駐車場・個別空調・タイルカーペット・男女別トイレがそろいます。リニューアル工事が済んでおり、築年数を感じさせない清潔感があります。貸室は一括貸しも相談可能です。
セイキ第2ビルは末広町駅(2番出口)の他に上野広小路駅(A1番出口)徒歩5分、湯島駅(6番出口)徒歩6分で利用も可能です。

近隣のエリア・駅から探す