セイキ第2ビルのテナント募集中区画
| 階数 | 面積 | 賃料(共益費含む) | 保証金 | 入居可能日 | 検討リスト | 詳細 |
|---|---|---|---|---|---|---|
| 3 | 40.00坪 | 484,000円/月(12,100円/坪) | 308万円 | 2026年4月上旬 |
…新着物件
セイキ第2ビルのアクセス
セイキ第2ビルの物件情報
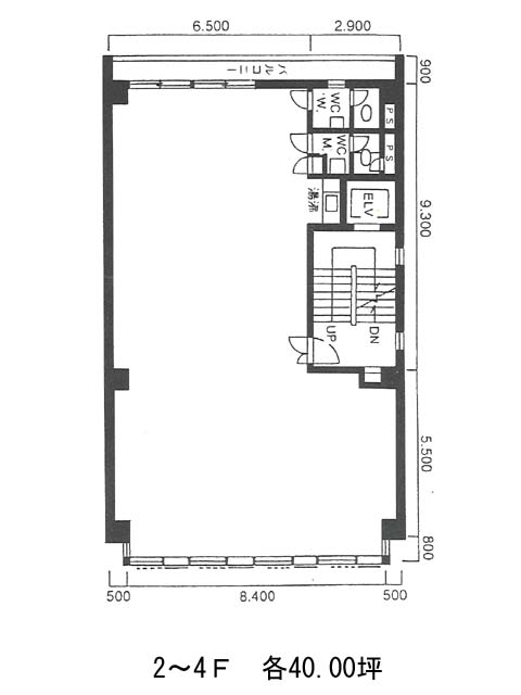
セイキ第2ビル(千代田区外神田)は末広町駅(2番出口)から徒歩3分の賃貸オフィスです。1973年竣工、地上7階建てRC造のビルです。アイボリーの外壁で明るくすっきりとした外観デザインをしています。基準階面積は40坪と、中規模のオフィスをお探しの会社によいでしょう。フロアの1箇所に共用部が集まり、設備仕様としては、EV・駐車場・個別空調・タイルカーペット・男女別トイレがそろいます。リニューアル工事が済んでおり、築年数を感じさせない清潔感があります。貸室は一括貸しも相談可能です。セイキ第2ビルは末広町駅(2番出口)の他に上野広小路駅(A1番出口)徒歩5分、湯島駅(6番出口)徒歩6分で利用も可能です。

