聖公会神田ビルのテナント募集中区画
| 階数 | 面積 | 賃料(共益費含む) | 保証金 | 入居可能日 | 検討リスト | 詳細 |
|---|---|---|---|---|---|---|
| 5 | 110.71坪 | 応相談(応相談) | 応相談 | 即 |
…新着物件
アクセス
聖公会神田ビルの物件情報
聖公会神田ビル(千代田区外神田)は末広町駅(3番出口)から徒歩3分の賃貸オフィスです。外神田エリアに佇むこちらの物件は、落ち着いた印象の外観と、奥行きのある堂々とした構造が特徴的なオフィスビルです。大通りから少し入った立地ながら視認性も良好で、来訪者への案内もしやすい環境です。
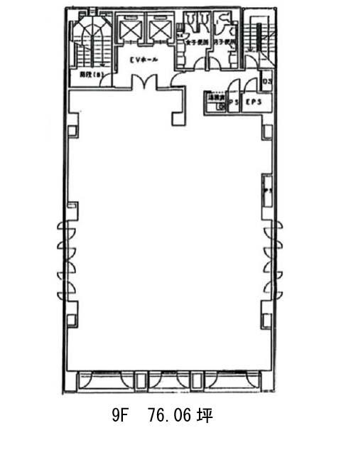
基準階は約110坪の広さを誇り、整った長方形の無柱空間。レイアウト自由度が高く、ワンフロアでゆったりとしたオフィス設計が可能です。エレベーター2基に加え、OAフロア・個別空調・機械警備など、設備面も安心感があります。敷地内には駐車場も確保されており、社用車利用のある企業にも適しています。
周辺には飲食店が点在しており、ランチや外部との打ち合わせ場所としても便利。落ち着いた雰囲気と利便性を両立した、働きやすいオフィス空間です。聖公会神田ビルは末広町駅(3番出口)の他に秋葉原駅(電気街口)徒歩7分、湯島駅(6番出口)徒歩7分で利用も可能です。

