TOKENビルのテナント募集中区画
| 階数 | 面積 | 賃料(共益費含む) | 保証金 | 入居可能日 | 検討リスト | 詳細 |
|---|---|---|---|---|---|---|
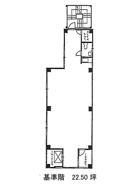
| 4 | 21.36坪 | 328,944円/月(15,400円/坪) | 150万円 | 即 |
…新着物件
アクセス
TOKENビルの物件情報
TOKENビル(千代田区外神田)は末広町駅(2番出口)から徒歩2分の賃貸オフィスです。TOKENビルは末広町駅(2番出口)の他に上野広小路駅(A1番出口)徒歩5分、湯島駅(6番出口)徒歩5分で利用も可能です。

