クレール麹町ビルのテナント募集中区画
| 階数 | 面積 | 賃料(共益費含む) | 保証金 | 入居可能日 | 検討リスト | 詳細 |
|---|---|---|---|---|---|---|
| 4 | 33.27坪 | 440,000円/月(13,225円/坪) | 応相談 | 即 |
…新着物件
アクセス
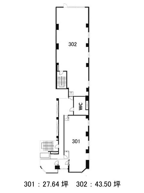
クレール麹町ビルの物件情報
クレール麹町ビル(千代田区麹町)は半蔵門駅(3b番出口)から徒歩1分の賃貸オフィスです。1980年竣工で、10階建てのビルです。細かい分割貸しに対応した物件です。優しいベージュを基調とした外壁で、大理石を使用したエントランス内は高級感のある空間となっております。エレベーターは1基設置されています。貸室内には支柱が無いので、自由な形でデスクなどの配置をすることができます。男女別のトイレ設置、徒歩圏内にはコンビニエンスストア、飲食店、カフェや郵便局といった様々な店舗が営業されております。クレール麹町ビルは半蔵門駅(3b番出口)の他に麹町駅(1番出口)徒歩6分、永田町駅(4番出口)徒歩11分で利用も可能です。

