GLORKS水道橋 8階
物件概要
物件番号
389-00001-70物件名
GLORKS水道橋所在地
- 東京都千代田区神田三崎町3-2-14
- アクセスマップ
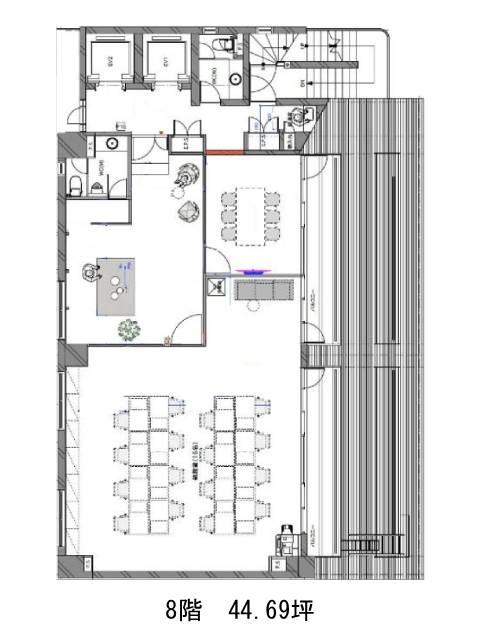
面積
44.69坪賃料(共益費含)
月額1,228,975円(27,500円/坪)
入居日
2026年3月下旬保証金
7,820,750円礼金
なし更新料
なし償却費
なし竣工
1990年3月構造
SRC規模
地上8階/地下1階トイレ
男女別空調
個別空調エレベーター
有セキュリティ
有駐車場
有耐震
新耐震基準基準階天井高
空室延床面積
44.69坪情報更新日
2026/02/18GLORKS水道橋のテナント募集中区画
| 階数 | 面積 | 賃料(共益費含む) | 保証金 | 入居可能日 | 検討リスト | 詳細 |
|---|---|---|---|---|---|---|
| 8 | 44.69坪 | 1,228,975円/月(27,500円/坪) | 782万円 | 2026年3月下旬 |
…新着物件
GLORKS水道橋のアクセス
GLORKS水道橋の物件情報
GLORKS水道橋(千代田区神田三崎町)は水道橋駅(西口)から徒歩4分の賃貸オフィスです。GLORKS水道橋は水道橋駅(西口)の他に神保町駅(A2番出口)徒歩8分、九段下駅(7番出口)徒歩8分で利用も可能です。

