6階は現在募集がありません
1フロア募集区画あり

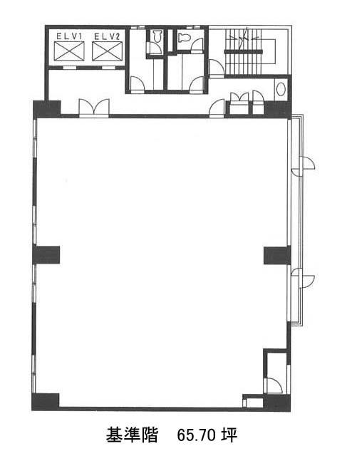
GLORKS水道橋 6階

前の写真 次の写真

物件概要

物件番号

389-00001-72

物件名

GLORKS水道橋

所在地

面積

65.70坪

賃料(共益費含)


入居日

募集終了

保証金

礼金

更新料

償却費

竣工

1990年3月

構造

SRC

規模

地上8階/地下1階

トイレ

男女別

空調

個別空調

エレベーター

セキュリティ

駐車場

耐震

新耐震基準

基準階天井高

空室延床面積

44.69坪

最寄駅

情報更新日

2026/02/18

GLORKS水道橋のテナント募集中区画

階数 面積 賃料(共益費含む) 保証金 入居可能日 検討リスト 詳細
8 44.69坪 1,228,975円/月(27,500円/坪) 782万円 2026年3月下旬
…新着物件

GLORKS水道橋のアクセス

GLORKS水道橋の物件情報

GLORKS水道橋(千代田区神田三崎町)は水道橋駅(西口)から徒歩4分の賃貸オフィスです。
GLORKS水道橋は水道橋駅(西口)の他に神保町駅(A2番出口)徒歩8分、九段下駅(7番出口)徒歩8分で利用も可能です。

近隣のエリア・駅から探す