2階は現在募集がありません
東急番町ビル 2階
物件概要
東急番町ビルのテナント募集中区画
現在、空室がございません。
東急番町ビルのアクセス
東急番町ビルの物件情報
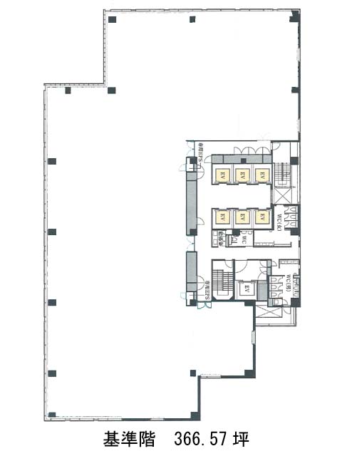
東急番町ビル(千代田区四番町)は市ヶ谷駅(3番出口)から徒歩3分の賃貸オフィスです。日本テレビ通りと二七通りとの交差点の角にあります。外観はガラスのガーテンウォールを大胆に取り入れたデザインで美しい仕上がりで、LED照明を全館に採用した大型オフィスビルです。2011年の9月に竣工の築年数が浅く綺麗なビルです。エレベーターは6基あるので上下移動はスムーズでしょう。室外には男女別のトイレと給湯室があり快適です。室内は無柱空間、床はフリーアクセスのためレイアウトはしやすいでしょう。1階にはコンビニがあり、周辺には飲食店も多数あるのでランチ時も便利でしょう。東急番町ビルは市ヶ谷駅(3番出口)の他に麹町駅(6番出口)徒歩5分、四ツ谷駅(麹町口)徒歩9分で利用も可能です。

