名古路ビル新館のテナント募集中区画
| 階数 | 面積 | 賃料(共益費含む) | 保証金 | 入居可能日 | 検討リスト | 詳細 |
|---|---|---|---|---|---|---|
| 5 | 78.43坪 | 応相談(応相談) | 応相談 | 即 |
…新着物件
名古路ビル新館のアクセス
名古路ビル新館の物件情報
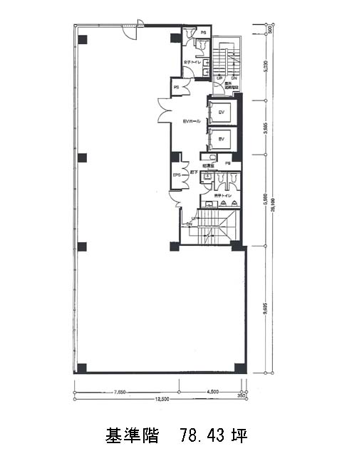
名古路ビル新館(千代田区神田錦町)は竹橋駅(3b番出口)から徒歩5分の賃貸オフィスです。グレーの大きなタイルとガラスウォールが美しい外観が特徴的な2008年竣工の新耐震基準を満たした建物です。スタイリッシュで開放的なエントランスの奥にはエレベーターが2基設置され、ビル内は機械式警備で24時間使用可能となっております。基準階面積は約75坪のL字型の間取りとなっており、天井高は約2,630mmと開放的で、OAフロアが完備されているので、フレキシブルなレイアウトが可能でしょう。その他、個別空調、男女別トイレと給湯室の水回りは全て室外に設置されており、執務空間との区分けがしっかりしています。神田警察通りから1本入った閑静な場所に位置し、角地のため採光も良く、大変魅力的な環境にあるといえるでしょう。名古路ビル新館は竹橋駅(3b番出口)の他に新御茶ノ水駅(B7番出口)徒歩6分、小川町駅(B7番出口)徒歩6分で利用も可能です。

