6階は現在募集がありません
1フロア募集区画あり

名古路ビル新館 6階

前の写真 次の写真

物件概要

物件番号

394-00101-60

物件名

名古路ビル新館

所在地

面積

78.43坪

賃料(共益費含)


入居日

募集終了

保証金

礼金

更新料

償却費

竣工

2008年6月

構造

SRC

規模

地上8階

トイレ

男女別

空調

個別空調

エレベーター

セキュリティ

駐車場

耐震

新耐震基準

基準階天井高

空室延床面積

78.43坪

最寄駅

情報更新日

2025/08/21

名古路ビル新館のテナント募集中区画

階数 面積 賃料(共益費含む) 保証金 入居可能日 検討リスト 詳細
5 78.43坪 応相談(応相談) 応相談 2026年1月上旬
…新着物件

アクセス

名古路ビル新館の物件情報

名古路ビル新館(千代田区神田錦町)は竹橋駅(3b番出口)から徒歩5分の賃貸オフィスです。
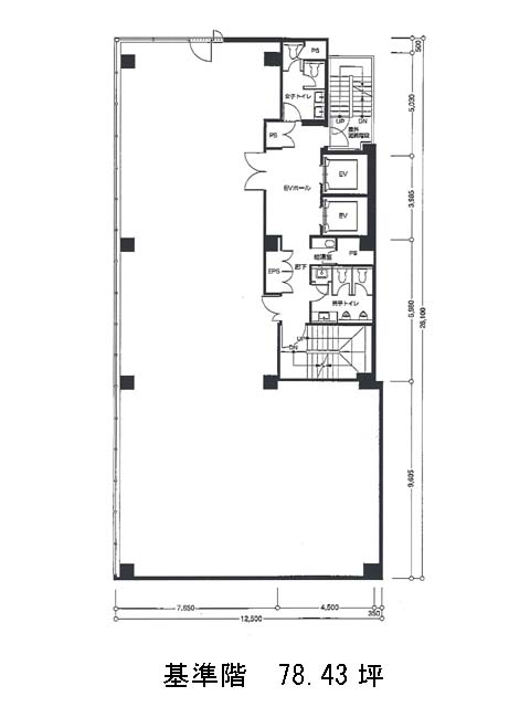
グレーの大きなタイルとガラスウォールが美しい外観が特徴的な2008年竣工の新耐震基準を満たした建物です。スタイリッシュで開放的なエントランスの奥にはエレベーターが2基設置され、ビル内は機械式警備で24時間使用可能となっております。基準階面積は約75坪のL字型の間取りとなっており、天井高は約2,630mmと開放的で、OAフロアが完備されているので、フレキシブルなレイアウトが可能でしょう。その他、個別空調、男女別トイレと給湯室の水回りは全て室外に設置されており、執務空間との区分けがしっかりしています。神田警察通りから1本入った閑静な場所に位置し、角地のため採光も良く、大変魅力的な環境にあるといえるでしょう。
名古路ビル新館は竹橋駅(3b番出口)の他に新御茶ノ水駅(B7番出口)徒歩6分、小川町駅(B7番出口)徒歩6分で利用も可能です。

近隣のエリア・駅から探す