10階は現在募集がありません
龍名館本店ビル 10階
物件概要
龍名館本店ビルのテナント募集中区画
現在、空室がございません。
龍名館本店ビルのアクセス
龍名館本店ビルの物件情報
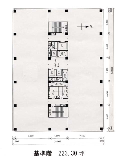
龍名館本店ビル(千代田区神田駿河台)は新御茶ノ水駅(B3a番出口)から徒歩2分の賃貸オフィスです。1975年竣工、地上12階地下1階建てSRC造のビルです。耐震補強工事が実施されています。窓ガラスが多く、すっきりとした外観をしています。フロアの中央部分に共用部があり、動線が良いでしょう。基準階面積は約223坪。大規模の企業・団体に対応できるでしょう。設備仕様として、EV・駐車場・個別空調・OAフロアがそろいます。分割貸しが相談可能なフロアがございます。室内は採光もよく、白を基調とした明るい内装をしています。龍名館本店ビルは新御茶ノ水駅(B3a番出口)の他に小川町駅(B3番出口)徒歩2分、淡路町駅(A7番出口)徒歩3分で利用も可能です。

