菱和ビルディングのテナント募集中区画
| 階数 | 面積 | 賃料(共益費含む) | 保証金 | 入居可能日 | 検討リスト | 詳細 |
|---|---|---|---|---|---|---|
| 9 | 65.78坪 | 1,664,234円/月(25,300円/坪) | 657万円 | 即 |
…新着物件
アクセス
菱和ビルディングの物件情報
菱和ビルディング(千代田区神田駿河台)は新御茶ノ水駅(B3a番出口)から徒歩2分の賃貸オフィスです。駅を出てすぐ、視界に飛び込んでくるのが本物件。駿河台三丁目交差点に面した角地という立地は、訪問者にも社員にもわかりやすく、日々の通勤や来客対応のストレスを軽減してくれます。
建物はベージュ系の外壁にダークトーンを効かせたファサードが特徴で、通り沿いでもひときわ目を引く存在感。エントランスホールには石造りの壁面が取り入れられており、第一印象に重厚感と品の良さを与えてくれます。
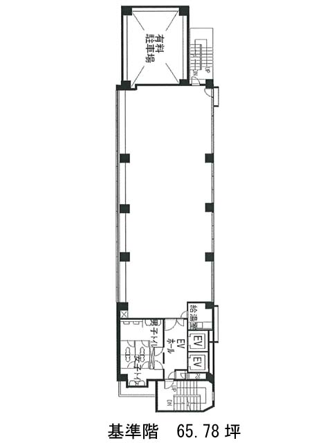
基準階は約66坪の長方形プラン。柱の張り出しが少なく、レイアウト効率の良い室内空間が広がります。男女別トイレ、OAフロア、個別空調といった基本設備も揃い、使い勝手にも配慮されています。菱和ビルディングは新御茶ノ水駅(B3a番出口)の他に小川町駅(B3番出口)徒歩2分、淡路町駅(A7番出口)徒歩4分で利用も可能です。

