第2木津ビルのテナント募集中区画
| 階数 | 面積 | 賃料(共益費含む) | 保証金 | 入居可能日 | 検討リスト | 詳細 |
|---|---|---|---|---|---|---|
| 2 | 43.00坪 | 614,900円/月(14,300円/坪) | 378万円 | 即 | ||
| 5 | 36.00坪 | 514,800円/月(14,300円/坪) | 316万円 | 即 |
…新着物件
アクセス
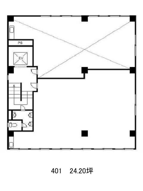
第2木津ビルの物件情報
第2木津ビル(千代田区神田小川町)は小川町駅(B5番出口)から徒歩2分の賃貸オフィスです。外観はダークトーンでまとめられており、落ち着いた印象。
募集区画は約18〜40坪とスモールユースに適したサイズ感で、スタートアップや分室利用にもぴったりな規模です。
最寄り駅からは徒歩すぐの距離のため、周辺はコンビニや飲食店も豊富です。働く人にとって日々のランチやちょっとした買い物にも困りません。トイレは男女別仕様で隔階ごとに設けられており、フロア内がよりすっきり使えるのも嬉しいポイント。第2木津ビルは小川町駅(B5番出口)の他に新御茶ノ水駅(B5番出口)徒歩2分、淡路町駅(A7番出口)徒歩3分で利用も可能です。

