3階は現在募集がありません
1フロア募集区画あり

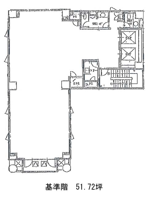
JHVビル 3階

前の写真 次の写真

物件概要

物件番号

402-00154-30

物件名

JHVビル

所在地

面積

51.72坪

賃料(共益費含)


入居日

募集終了

保証金

礼金

更新料

償却費

竣工

1992年6月

構造

SRC

規模

地上9階

トイレ

男女別

空調

個別空調

エレベーター

セキュリティ

駐車場

耐震

新耐震基準

基準階天井高

2600mm

空室延床面積

51.72坪

最寄駅

情報更新日

2026/02/05

JHVビルのテナント募集中区画

階数 面積 賃料(共益費含む) 保証金 入居可能日 検討リスト 詳細
6 51.72坪 910,272円/月(17,600円/坪) 537万円
…新着物件

JHVビルのアクセス

JHVビルの物件情報

JHVビル(千代田区神田神保町)は神保町駅(A5番出口)から徒歩4分の賃貸オフィスです。
白山通りに面した立地です。外観は正面にバルコニーがついたスタイリッシュなデザインの建物で視認性は高いでしょう。室内には男女別のトイレと白く清潔な印象の給湯スペースがあります。間取りはL字型ですが、無柱空間でレイアウトはしやすいでしょう。バルコニーもあるのでちょっとした気分転換にもよさそうです。機械警備も備え、耐震は新耐震基準を満たしているため安心・安全です。周辺はコンビニ、飲食店もたくさんあるので充実したランチタイムが過ごせるでしょう。
JHVビルは神保町駅(A5番出口)の他に水道橋駅(東口)徒歩7分、御茶ノ水駅(御茶ノ水橋口)徒歩10分で利用も可能です。

近隣のエリア・駅から探す