JHVビルのテナント募集中区画
| 階数 | 面積 | 賃料(共益費含む) | 保証金 | 入居可能日 | 検討リスト | 詳細 |
|---|---|---|---|---|---|---|
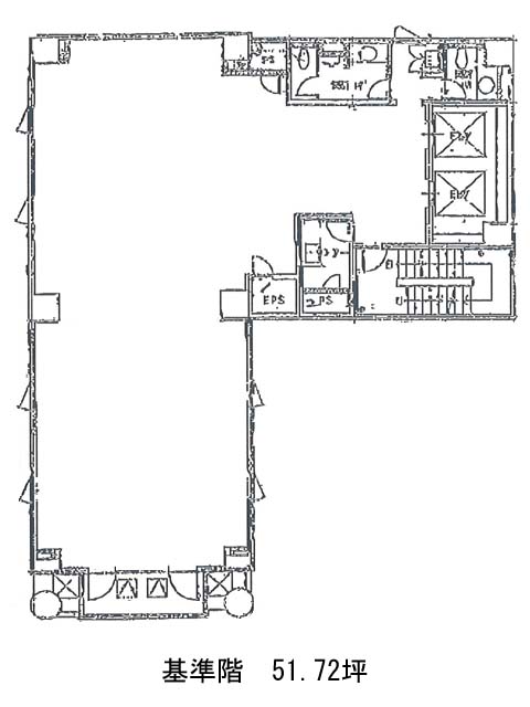
| 6 | 51.72坪 | 910,272円/月(17,600円/坪) | 537万円 | 即 |
…新着物件
アクセス
JHVビルの物件情報
JHVビル(千代田区神田神保町)は神保町駅(A5番出口)から徒歩4分の賃貸オフィスです。白山通りに面した立地です。外観は正面にバルコニーがついたスタイリッシュなデザインの建物で視認性は高いでしょう。室内には男女別のトイレと白く清潔な印象の給湯スペースがあります。間取りはL字型ですが、無柱空間でレイアウトはしやすいでしょう。バルコニーもあるのでちょっとした気分転換にもよさそうです。機械警備も備え、耐震は新耐震基準を満たしているため安心・安全です。周辺はコンビニ、飲食店もたくさんあるので充実したランチタイムが過ごせるでしょう。JHVビルは神保町駅(A5番出口)の他に水道橋駅(東口)徒歩7分、御茶ノ水駅(御茶ノ水橋口)徒歩10分で利用も可能です。

