4階は現在募集がありません
文銭堂ビル 4階
物件概要
文銭堂ビルのテナント募集中区画
現在、空室がございません。
アクセス
文銭堂ビルの物件情報
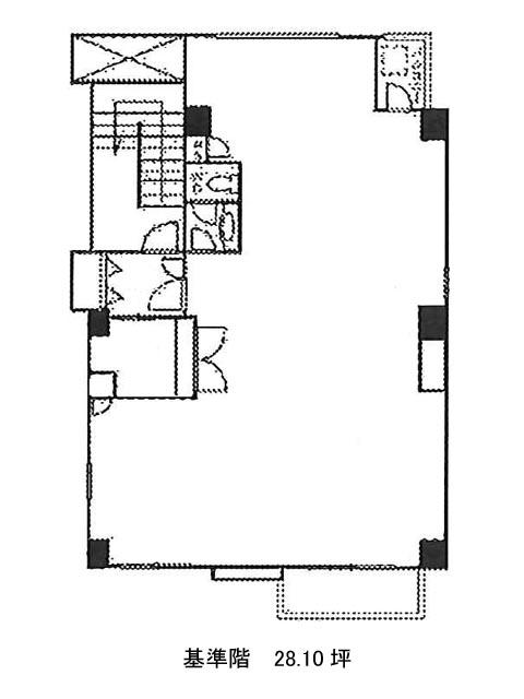
文銭堂ビル(千代田区神田神保町)は神保町駅(A6番出口)から徒歩2分の賃貸オフィスです。ベージュのタイル貼りの外観が、落ち着いた印象を与えます。一階が和菓子屋になっているので、道案内の目印としてもわかりやすいです。使い勝手の良い長方形タイプの間取り。床はタイルカーペットになっています。機械警備を備えており、防犯対策は万全です。また、新耐震基準をクリアしている点も安心できます。コンビニや飲食店が近く、昼食や買い物にも便利な環境です。文銭堂ビルは神保町駅(A6番出口)の他に新御茶ノ水駅(B5番出口)徒歩8分、小川町駅(B5番出口)徒歩8分で利用も可能です。

